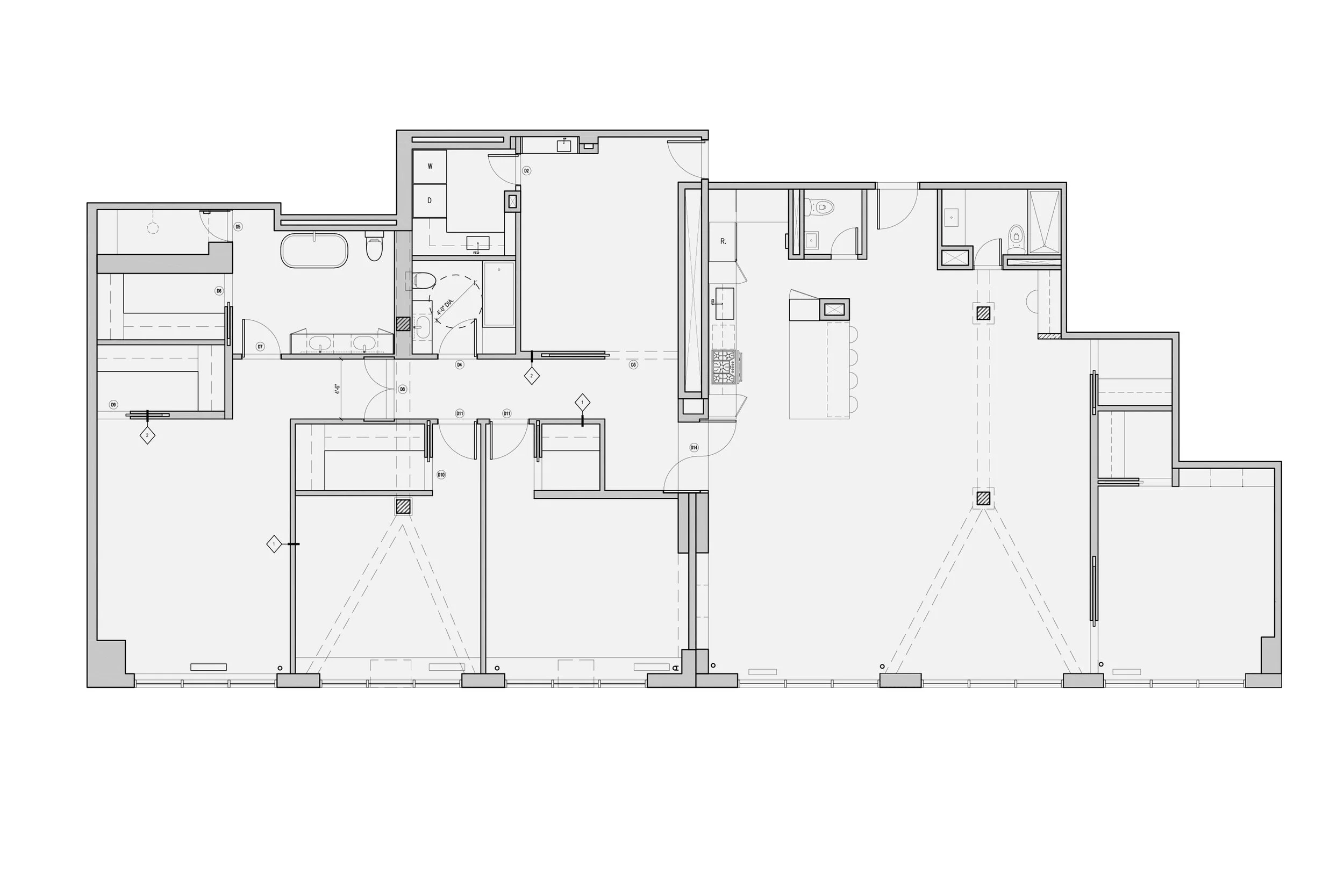
Type: Apartment Residence
Client: Private
Size: 3,100 sqft.
Location: Chelsea, New York
Status: In Progress

Architect: Greyscale Architecture
Structural: Tom Gasbarro  
MEP: Jackgreen Engineers